Alquiler Local en Torrejón de Ardoz

Nave Logística en Torrejón de Ardoz

6.087 m²
4
1
6 €/m²

Descripción

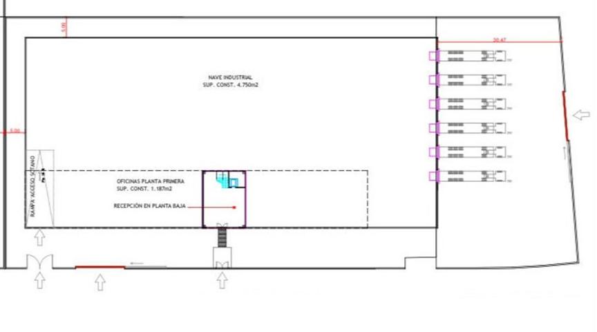
Nave logística tipo C construcción llave en mano en alquiler de 6.087 m2 construidos en parcela de 8.547,24 m2 Almacén de 4.750 m2 6 muelles 11,5 m de altura Oficina de 1.337 m2 (PB de 150 m2 y P1ª de 1.187 )Gastos de Comunidad: Arrendatario Disponibilidad: 18 meses desde la firma del contrato de arrendamiento(*) Sótano de 2.500 m2 - renta a consultar

traducir

Trovimap ID: 483248-39187903
Ref. Agencia: 19091

Características

Tipo

Local

Planta

-

Año de construcción

-

Certificado energético

Exento

Características interiores

  • Calefacción:
    Ninguno

Popularidad

Última actualización

30 sept. 2025

Días en el mercado

4

Visitas

-

Compara y solicita la mejor hipoteca

M2 Soluciones Inmobiliarias

Ver las propiedades de la agencia

¿Cual es el valor de tu inmueble?

Escribe tu dirección. Obtén al instante tu valoración GRATUITA