Compra Oficina en Son Servera, Son Servera

Gran local comercial de 3 plantas con posibilidad de cambio de uso en Son Servera.

648 m²
4
1
1.065 €/m²

Descripción

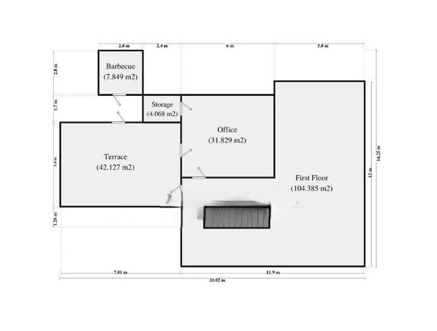
Descubre una excelente oportunidad inmobiliaria en el centro de Son Servera: un amplio y versátil local comercial con grandes posibilidades, tanto para uso empresarial como para un cambio de uso a viviendas, con la opción de crear hasta 6 apartamentos VPL.La propiedad se distribuye en 3 plantas:Sótano (250 m2): ideal para desarrollar un amplio aparcamiento privado u otros usos.Planta baja (250 m2): espacio diáfano y luminoso, con grandes ventanales, además de dos estancias independientes para oficina o almacén.Primera planta: 105 m2 de local más una oficina de 32 m2 y una terraza abierta de 50 m2.Existe también la posibilidad de adquirir, junto al local, el piso situado en la segunda planta del mismo edificio. Esta vivienda de 148 m2 cuenta con tres dormitorios, baño completo, aseo, salón-comedor, cocina, lavandería, galería cerrada y terraza privada ambas con vistas panorámicas.Ubicado en Son Servera con todos los servicios esenciales se encuentra a 2 kilómetros del mar y zonas turísticas como cala Millor, Sa Coma, Costa de los Pinos y Porto Cristo. Una propiedad que combina ubicación, flexibilidad y gran potencial de inversión.

traducir

Trovimap ID: 474231-39003279
Ref. Agencia: RED-MM0062

Características

Tipo

Oficina

Planta

0

Año de construcción

1992

Certificado energético

-

Características interiores

  • Calefacción:
    Otro

Otros

Terraza

Popularidad

Última actualización

17 may. 2026

Días en el mercado

279

Visitas

-

Compara y solicita la mejor hipoteca

RED Mallorca

¿Cual es el valor de tu inmueble?

Escribe tu dirección. Obtén al instante tu valoración GRATUITA