Compra Terreno Urbanizable en Centro, Santa Pola

Proyecto residencial en zona céntrica de Santa Pola

-
4
1
-

Descripción

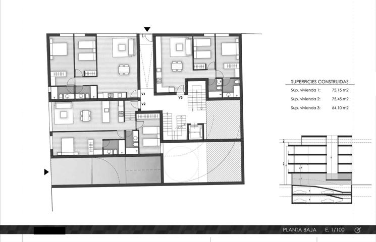
Presentamos una excelente oportunidad para inversores y promotores interesados en un desarrollo inmobiliario en el corazón de Santa Pola.Características del proyecto Superficie de solar 370 m2Proyecto para planta baja, tres niveles y un ático, para un total de 18 viviendas distribuidas de la siguiente manera: - Tres viviendas en la planta baja con dos dormitorios. - Doce viviendas en las plantas intermedias, con tres dormitorios cada una (cuatro por planta). - Tres exclusivas viviendas en el ático con dos dormitorios. El proyecto incluye un espacio de garaje con capacidad para ocho a diez plazas, un elemento clave para añadir valor y comodidad a la propuesta. Opciones de uso mixto El diseño del proyecto permite alternativas comerciales que amplían las posibilidades de rentabilidad, como su uso como apartahotel o pensión, ideales para atender al turismo de la zona. Ubicación estratégica El inmueble se encuentra en una zona céntrica de Santa Pola, un lugar que combina la tranquilidad residencial con la cercanía a servicios esenciales, playas, comercios y lugares de recreo. Su localización garantiza un atractivo tanto para residentes permanentes como para visitantes de temporada. El acceso a las principales ciudades de la región es rápido y directo, con Alicante a 20 kilómetros y Elche a 18 kilómetros, lo que añade un valor estratégico al proyecto. Ventajas para inversores Este desarrollo residencial ofrece una propuesta, versátil y adaptable, diseñada para satisfacer las demandas de un mercado inmobiliario dinámico. Su ubicación y la posibilidad de un uso mixto lo convierten en una oportunidad ideal para maximizar la inversión en una zona de alta valorización. Contáctenos para más información y para iniciar un proyecto que combina ubicación estratégica, diseño innovador y gran potencial de retorno.

traducir

Trovimap ID: 474149-38005995
Ref. Agencia: STP-SO

Características

Tipo

Terreno Urbanizable

Planta

0

Año de construcción

-

Certificado energético

-

Popularidad

Última actualización

22 oct. 2025

Días en el mercado

324

Visitas

-

Compara y solicita la mejor hipoteca

Quesada Inmobiliaria

Ver las propiedades de la agencia

¿Cual es el valor de tu inmueble?

Escribe tu dirección. Obtén al instante tu valoración GRATUITA