Compra Ático en Cieza, Cieza

Ático de Obra Nueva

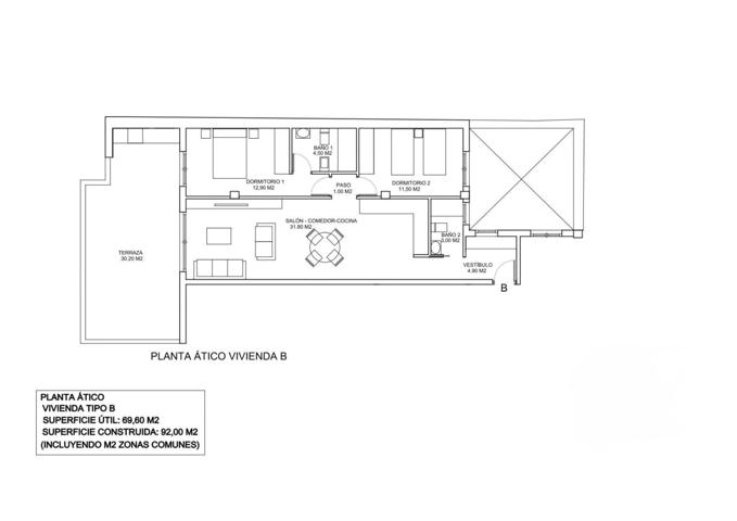
92 m²
4
1
2.348 €/m²

Descripción

¡NUEVO A LA VENTA EN REMAX!¡ÚLTIMA UNIDAD DISPONIBLE DE PROMOCIÓN DE OBRA NUEVA!Te presentamos este magnífico ático en proyecto ubicado en una de las áreas residenciales con mayor proyección y demanda de Cieza y... ¡CON DOBLE PLAZA DE GARAJE!Este ático ofrece una distribución práctica y funcional, con 2 habitaciones y 2 baños. Dispone además de una terraza de 30 m2, ideal para uso recreativo y disfrute exterior.Entre sus características adicionales, destacan:- Preinstalación de aire acondicionado- Ascensor en el edificio- Dos plazas de garaje- Trastero independiente- Terraza privadaEste ático presenta una excelente oportunidad para quienes buscan una vivienda moderna, bien comunicada y con zonas exteriores, situada en un entorno residencial consolidado y próximo a todos los servicios esenciales.Si estás interesado pregunta sin compromiso, disponemos de toda la infomación necesaria (Planos, memoria de calidades,etc...).

traducir

Trovimap ID: 472901-39237240
Ref. Agencia: RML-02775

Características

Tipo

Ático

Planta

4

Año de construcción

-

Certificado energético

-

Equipamiento

  • Ascensor:
    Si
  • Tipo de parking:
    Garaje O Parking Subterráneo

Otros

Terraza

Popularidad

Última actualización

26 feb. 2026

Días en el mercado

140

Visitas

-

Compara y solicita la mejor hipoteca

¿Cual es el valor de tu inmueble?

Escribe tu dirección. Obtén al instante tu valoración GRATUITA