Compra Terreno Urbanizable en Passeig De Les Fonts, Navarcles

Terreno para edificar Casa unifamiliar

-
4
1
-

Descripción

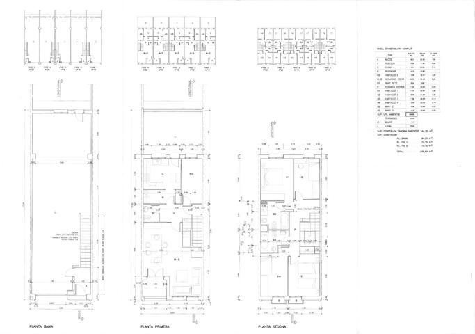
¿Te gustaría tener una casa unifamiliar en Navarcles, con la distribución que a ti te guste y los acabados que tú elijas? ¿Con un jardín de 80 m2 para instalar tu piscina y las cenas al aire libre? En la mejor zona, en el Paseo de les Fonts, en pleno centro, pero con el Parque justo en frente. ¿Planteas hacerte la vivienda como tú quieras... comedor y cocina a pie de jardín? Terraza en la 1ª planta ¿dónde disfrutar con la familia?? ¿Un estudio para trabajar sin que te molesten?? Todo lo que tú desees... ¡Tenemos un solar donde hacer la casa de tus sueños! Llámanos. Impuestos y gastos de compra aparte.

traducir

Trovimap ID: 390805-39223815
Ref. Agencia: 3340

Características

Tipo

Terreno Urbanizable

Planta

0

Año de construcción

-

Certificado energético

-

Equipamiento

  • Tipo de parking:
    Garaje O Parking Subterráneo

Popularidad

Última actualización

30 abr. 2026

Días en el mercado

205

Visitas

-

Compara y solicita la mejor hipoteca

¿Cual es el valor de tu inmueble?

Escribe tu dirección. Obtén al instante tu valoración GRATUITA