Compra Piso en Alacant/Alicante

Planta baja en venta en Alicante, Carolinas bajas

130 m²
4
1
885 €/m²

Descripción

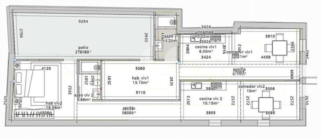
mv205007. Te presentamos este local con proyecto aprobado para su transformación en vivienda, ubicado en una zona céntrica y con múltiples posibilidades.



Características principales:

Superficie: 130 m², ideal para diseñar un hogar a tu medida.

Estado: Para reformar, con la oportunidad de convertirlo en dos viviendas independientes.

Altura de techos: 3,8 metros, proporcionando amplitud y luminosidad.

Extras: Patio privado y posibilidad de instalar ventanas en la fachada lateral, autorización concedida de los vecinos.

Ubicación privilegiada:



Situado en Carolinas Bajas, con acceso a:



Transporte público: Autobuses.

Áreas verdes y zonas infantiles.

Supermercados, parques y servicios esenciales.





Precio de venta: ahora a tan solo 115.000 €



¡Transforma este espacio en la vivienda de tus sueños o invierte con grandes posibilidades! Contáctanos para más información y visita. ✨. Visítanos en Todopisos.

traducir

Trovimap ID: 382244-39856618
Ref. Agencia: IMS-mv205007

Características

Tipo

Piso

Planta

-

Año de construcción

1965

Certificado energético

-

Características interiores

  • Mascotas:
    No Se Permiten Mascotas

Popularidad

Última actualización

09 dic. 2025

Días en el mercado

1

Visitas

-

Compara y solicita la mejor hipoteca

¿Cual es el valor de tu inmueble?

Escribe tu dirección. Obtén al instante tu valoración GRATUITA