Alquiler Otro en Santa Coloma de Gramenet

Local comercial en alquiler en Santa Coloma de Gramenet, Centre

566 m²
4
1
17 €/m²

Descripción

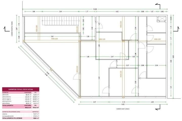
AEJPS12. Este edificio de 566m2, actualmente vacio y anteriormente destinado a oficinas, se presenta como una excelente oportunidad de inversión gracias a su proyecto de transformación en una moderna residencia de estudiantes. ~~Ubicado en una zona estratégica del área metropolitana de Barcelona, se sitúa a solo 7 km del centro de la ciudad, perfectamente comunicado mediante la Línea 1 del metro, con estación a escasos metros.~~El edificio cuenta con un proyecto técnico ya elaborado, que plantea su rehabilitación integral y su adecuación como residencia de estudiantes de alta calidad.~~El diseño está pensado para ofrecer un espacio funcional, moderno y confortable, maximizando el aprovechamiento del inmueble~~Planta baja + 4 plantas superiores con forma de chaflán, que aporta mayor visibilidad, luz natural y ventilación~~Distribución propuesta:~~14 habitaciones dobles, cada una equipada con baño privado (Capacidad total: 28 plazas)~~Zonas comunes en la 4ª planta (ático), incluyendo: Espacios comunes, cocina, comedor, lavandería, terrazas y solárium~~Presupuesto estimado de obra: 400.000 €~~Este presupuesto contempla una rehabilitación completa, incluyendo:~~Rehabilitación estructural (fachada, cubierta, refuerzos si fueran necesarios)~~Instalación de ascensor~~Renovación total de las instalaciones eléctricas y de fontanería~~Redistribución interior conforme al proyecto~~Acabados modernos y de calidad~~Diseño moderno, enfocado en la comodidad del estudiante y la eficiencia energética~~Este inmueble representa una oportunidad ideal tanto para inversores, particulares como para fondos especializados en activos residenciales.~~Condiciones del alquiler:~oContrato de 15 años (5 años de obligado cumplimiento)~oRenta mensual: 9.900 € + IVA~oRenta anual: 118.800 € + IVA~oFianza: 2 mensualidades~oCesión de la licencia incluida~~~Alta demanda de alojamiento para estudiantes en el área metropolitana de Barcelona~~Entorno urbano con servicios, seguridad y transporte, ideal para la vida estudiantil~~Contactar para ampliar informacion~~~. Visítanos en Todopisos.

traducir

Trovimap ID: 382244-39798723
Ref. Agencia: UWZ-AEJPS12

Características

Tipo

Otro

Planta

-

Año de construcción

1970

Certificado energético

-

Características interiores

  • Mascotas:
    No Se Permiten Mascotas

Otros

Terraza

Popularidad

Última actualización

29 nov. 2025

Días en el mercado

15

Visitas

-

Compara y solicita la mejor hipoteca

¿Cual es el valor de tu inmueble?

Escribe tu dirección. Obtén al instante tu valoración GRATUITA