Compra Piso en Marroquina

Piso en venta en Madrid, Puente De Vallecas - San Diego

-
4
1
-

Descripción

10152. VIVIENDA EN VENTA EN VALLECAS DE 2 HABITACIONES CON GARAGE



Exclusiva vivienda en construcción, y por tanto de obra nueva en Vallecas.

Disponible para venta directa o para inversores.



Ubicada en un moderno edificio residencial de 337 m² construidos,

- Ideal si se busca un activo con alto potencial de crecimiento, rentabilidad y demanda asegurada en Madrid.

Perfecto para una familia o inversión patrimonial completa

- Prefecto para familias que desean vivir cerca del centro de Madrid





VENTAJAS DE COMPRAR VIVIENDA EN VALLECAS



Alto Potencial de Revalorización de cada vivienda en venta:

Vallecas está en transformación urbana y registró una subida del 20,5 % en el valor de la vivienda durante el último año.



Activo Completo:

Incluye viviendas con plaza de garaje

Plaza para bicicleta



Distribución Óptima:

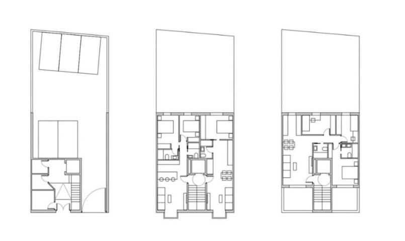
Piso con 2 habitaciones (67 m²)



Calidad y Ubicación:

Vivienda de obra nueva con diseño contemporáneo, eficiencia energética y materiales de alta calidad.

Ubicación estratégica junto a la M-30 con excelente conexión al centro



Precio para compra llave en mano:





LA VIVIENDA DE EL EDIFICIO DE NUEVA CONSTRUCCION- PROYECTO COMPLETO



Precio llave en mano del edificio: 1.400.000 € (Precio para finalistas)

Inicio de obra: febrero 2026

Duración del proyecto: 14 meses

Las viviendas en venta de obra nueva en el edificio:

- 2 viviendas de 1 habitación (54 m² c/u)

- 2 viviendas de 2 habitaciones (67 m² c/u)

- 1 vivienda exclusiva con terraza privada (95 m²)





EVOLUCION DE PRECIOS DE VENTA EN VALLECAS



En la fecha de carga de este anuncio la subida anual para todo tipo de vivienda es del 22,2%

Aproveche esta oportunidad antes de que vuelvan a subir los precios.





Vallecas, en pleno proceso de transformación urbana, ha registrado una subida del 20,5 % en el valor de la vivienda durante el último año. La zona dispone de centros de salud, colegios, supermercados y una amplia oferta de ocio y transporte público.



¡Descubre esta oportunidad única de adquirir un edificio completo en Madrid con nueva construcción y alto potencial de revalorización!. Visítanos en Todopisos.

traducir

Trovimap ID: 382244-39645410
Ref. Agencia: BVB-10152

Características

Tipo

Piso

Planta

-

Año de construcción

-

Certificado energético

-

Características interiores

  • Mascotas:
    No Se Permiten Mascotas

Popularidad

Última actualización

19 mar. 2026

Días en el mercado

121

Visitas

-

Compara y solicita la mejor hipoteca

¿Cual es el valor de tu inmueble?

Escribe tu dirección. Obtén al instante tu valoración GRATUITA