Compra Piso en Castellana

Piso en venta en Madrid, Salamanca

192 m²
4
1
12.500 €/m²

Descripción

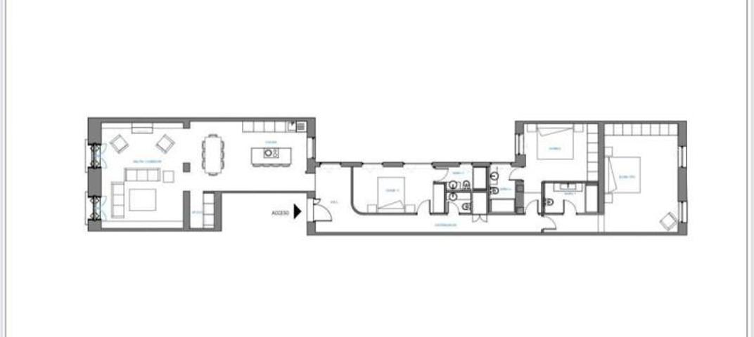
DM. Domus Madrid Real Estate vende piso a estrenar ubicado en Castellana, en una de las calles más bonitas y tranquilas del barrio de Salamanca.~~Obra al 40%. Las fotos son de pisos realizados por el mismo estudio de arquitectura.~~Vivienda totalmente reformada de 192 m² construidos según catastro, ubicada en la cuarta planta de un edificio clásico. Consta de amplio saló-comedor con acceso directo a cocina independiente. La zona de noche dispone de 3 habitaciones en suite con baño incorporado, una de las habitaciones tiene vestidor. Se entrega totalmente amueblado con muebles de diseño hechos a medida, acabados en madera y una excelente iluminación LED. Calefacción y aire acondicionado. La finca tiene ascensor. Estupenda ubicación, rodeada de todos los servicios y con muy buenas comunicaciones tanto en transporte privado como público.~~Nos encontramos en el mejor barrio de Madrid, donde cada edificio tiene su propia historia, cada rincón es especial. Podemos observar andando por sus calles el gran lujo que le caracteriza encontrándonos con las mejores tiendas de moda a nivel internacional.~La oferta gastronómica es inmejorable y muy variada, por otro lado tenemos el mejor parque de Madrid, el Retiro, donde podemos disfrutar de una gran variedad de actividades al aire libre y toda esta maravilla rodeada de edificios clásicos que solo podemos encontrar en nuestra ciudad.~Podemos observar todavía algún palacete que perteneció a la aristocracia y monumentos muy representativos de la historia de nuestro país. Lugar preferido para vivir para la clase alta extranjera que viene a Madrid.~~Desde Domus Madrid Real Estate queremos agradecerles su confianza en nosotros y comunicarles que en nuestra página web disponemos de propiedades exclusivas que no están publicadas en otros portales inmobiliarios.. Visítanos en Todopisos.

traducir

Trovimap ID: 382244-39542169
Ref. Agencia: DTN-DM0073680

Características

Tipo

Piso

Planta

-

Año de construcción

-

Certificado energético

-

Características interiores

  • Calefacción:
    Otro
  • Mascotas:
    No Se Permiten Mascotas
  • Sistemas de seguridad:

    Vigilante

Equipamiento

  • Ascensor:
    Si

Otros

Amueblado
Balcon

Popularidad

Última actualización

04 nov. 2025

Días en el mercado

113

Visitas

-

Compara y solicita la mejor hipoteca

¿Cual es el valor de tu inmueble?

Escribe tu dirección. Obtén al instante tu valoración GRATUITA