Compra Agrícola en Baiona

Terreno en venta en Baiona

-
4
1
-

Descripción

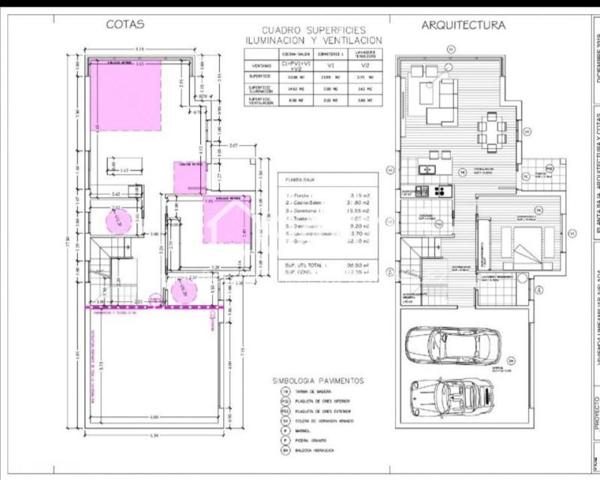
23483. Se vende maravilloso terreno en una de las mejores zonas de Baiona, tan solo a 2 minutos de la playa.

Tu espectacular vivienda tiene en la planta baja el garaje donde tiene espacio para 2 vehículos, zona de lavadero - tendedero, trastero, un porche de 3,15 metros donde podrás disfrutar de la tranquilidad de la zona tomándote algo, al aire libre, cocina (totalmente equipada) - salón y 1 habitación. Un total de 117,55 metros.

Subimos por las escaleras a la planta alta y tenemos una cristalera que cubre tu terraza de 11,10 metros desde donde ves la playa, donde escuchas el sonido del mar y sientes la brisa del mar.

Además de 2 dormitorios, uno de ellos es el principal con 15 metros y 2 baños completos .

Total de la planta 77,70 metros.

La vivienda tiene suelo radiante.

Es el paraíso que tu te mereces, tranquilidad, mar y playa.

No dejes de pedirnos información y de visitar tu futuro hogar.



Nota: este anuncio es meramente informativo y carece de valor contractual, puede contener algún error involuntario.. Visítanos en Todopisos.

traducir

Trovimap ID: 382244-39494383
Ref. Agencia: SWXU-23483

Características

Tipo

Agrícola

Planta

-

Año de construcción

-

Certificado energético

-

Características interiores

  • Mascotas:
    No Se Permiten Mascotas

Popularidad

Última actualización

04 nov. 2025

Días en el mercado

94

Visitas

-

Compara y solicita la mejor hipoteca

¿Cual es el valor de tu inmueble?

Escribe tu dirección. Obtén al instante tu valoración GRATUITA