Compra Comunidad en Arrecife

Edificio en venta en Arrecife, Santa Coloma - Titerroy

240 m²
4
1
1.000 €/m²

Descripción

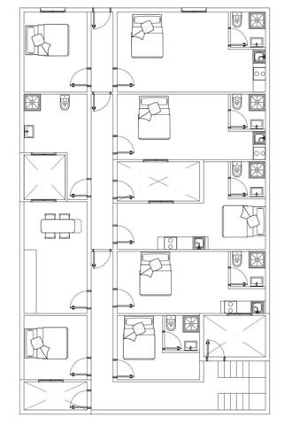
1912. Un edificio ideal con múltiples posibilidades en Arrecife tanto para los q buscan nueva vivienda como para los Inversores que ven, especialmente a rehabilitar, una vía de negocio en crecimiento.~ Propiedad con posibilidad de construir de 3 plantas y 9 apartamentos .~ La superficie con proyección de 3 plantas del edificio puede hacer un total de 720m2.~Dispone de un garaje para 4 coches.~Otra posibilidad sería alquiler turístico de habitaciones . Le adjunto plano del proyecto.~Se acepta permuta.~ ~ Proyecto de Inversión con mucha demanda en esa zona .~ Somos especialistas en Análisis de Oportunidades de Negocio. No dude en llamarnos, aproveche esta oportunidad !~ . Visítanos en Todopisos.

traducir

Trovimap ID: 382244-39441188
Ref. Agencia: MCP-1912

Características

Tipo

Comunidad

Planta

-

Año de construcción

-

Certificado energético

-

Características interiores

  • Mascotas:
    No Se Permiten Mascotas

Popularidad

Última actualización

20 nov. 2025

Días en el mercado

32

Visitas

-

Compara y solicita la mejor hipoteca

¿Cual es el valor de tu inmueble?

Escribe tu dirección. Obtén al instante tu valoración GRATUITA