Compra Otro en Vilanova del Camí

Local comercial en venta en Vilanova del Camí, VILANOVA DEL CAMÍ

113 m²
4
1
876 €/m²

Descripción

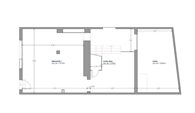
19062. Local comercial en venda amb projecte de canvi d’ús a habitatge – Centre de Vilanova del Camí~~Oportunitat única! Es ven local comercial situat al centre de Vilanova del Camí, amb una superfície construïda de 113 m². L\\\'última activitat desenvolupada ha estat un restaurant, de manera que disposa de dues cambres de bany, acabats amb terra ceràmic i tancaments de fusta.~~El local compta amb projecte en curs per al canvi d’ús a habitatge, oferint així una gran oportunitat per a inversors o per a qui desitgi convertir-lo en una vivenda amb encant i en una ubicació privilegiada.~~Característiques destacades:~~113 m² construïts~~Projecte de canvi d’ús a habitatge~~Dues cambres de bany~~Terra ceràmic i tancaments de fusta~~Situació immillorable al centre de Vilanova del Camí~~Tots els serveis a peu de carrer~~Excel·lent connexió amb transport públic (Ferrocarrils i línia d’autobús Igualada-Barcelona)~~Incloem plànols del projecte a les imatges de l’anunci.~~Molt interessant i amb moltes possibilitats! Ideal per convertir en un habitatge acollidor o com a inversió rendible.~~Per a més informació o per concertar una visita, no dubtis a contactar-nos!. Visítanos en Todopisos.

traducir

Trovimap ID: 382244-39379129
Ref. Agencia: REB-19062

Características

Tipo

Otro

Planta

-

Año de construcción

1988

Certificado energético

-

Características interiores

  • Mascotas:
    No Se Permiten Mascotas

Popularidad

Última actualización

19 mar. 2026

Días en el mercado

179

Visitas

-

Compara y solicita la mejor hipoteca

¿Cual es el valor de tu inmueble?

Escribe tu dirección. Obtén al instante tu valoración GRATUITA