Compra Comunidad en la Dreta de l'Eixample

Edificio en venta en Barcelona, Centre

360 m²
4
1
3.056 €/m²

Descripción

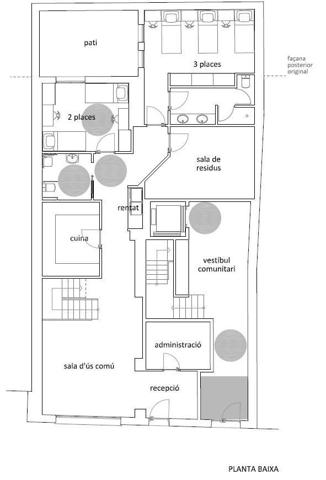
RMOL01. Ubicado en la PLANTA BAJA Y PLANTA PRIMERA de un Edificio Residencial~~Estado para REFORMAR~~Licencia de ALBERGUE SOCIAL en tramite~~CAPACIDAD - 18 plazas~~5 habitaciones triples~~1 habitacion doble~~1 habitacion individual~~2 baños amplios~~Zona de comunitaria amplia, cocina y vaias salas de almacenaje~~Ubicacion inmejorable entre Plaza Catalunya y calle Fontanella y Via Layetana.~~~~. Visítanos en Todopisos.

traducir

Trovimap ID: 382244-36435819
Ref. Agencia: UWZ-RMOL01

Características

Tipo

Comunidad

Planta

-

Año de construcción

-

Certificado energético

-

Características interiores

  • Mascotas:
    No Se Permiten Mascotas

Popularidad

Última actualización

20 nov. 2025

Días en el mercado

734

Visitas

-

Compara y solicita la mejor hipoteca

¿Cual es el valor de tu inmueble?

Escribe tu dirección. Obtén al instante tu valoración GRATUITA