Compra Unifamiliar Pareada en Cedeira

Adosada en venta en Cedeira, Cedeira

112 m²
4
1
759 €/m²

Descripción

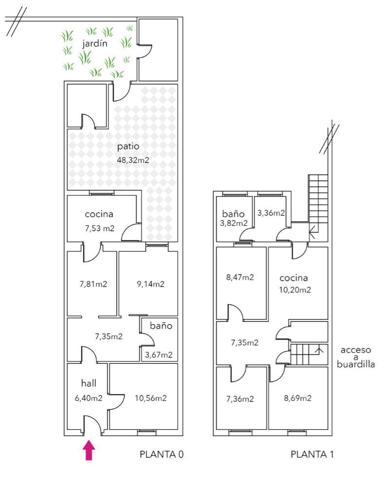
893/8095. REF. 893/8095. Vivienda de piedra compuesta por un bajo, piso alto y

buhardilla, cubierta de madera y teja, con un patio por la parte

de atrás donde se encuentran las escaleras para el acceso a la

planta superior.

• Superficie construida 153m2

• Superficie de suelo 119m2 con posibilidades de

edificación.

• 2 plantas más buhardilla.

• Acceso a la segunda planta por patio trasero.

• Patio 48m2

• 2 baños

• Consta de 16 estancias

• Lavadero. Visítanos en Todopisos.

traducir

Trovimap ID: 382244-23411421
Ref. Agencia: IQH-893/8095

Características

Tipo

Unifamiliar Pareada

Planta

-

Año de construcción

1970

Certificado energético

-

Características interiores

  • Mascotas:
    No Se Permiten Mascotas

Popularidad

Última actualización

04 nov. 2025

Días en el mercado

741

Visitas

-

Compara y solicita la mejor hipoteca

¿Cual es el valor de tu inmueble?

Escribe tu dirección. Obtén al instante tu valoración GRATUITA