Compra Oficina en Vilanova Del Camí, Vilanova Del Cami

LOCAL COMERCIAL EN VENDA AMB PROJECTE DE CANVI D'ÚS A HABITATGE / CENTRE DE VILANOVA DEL CAMÍ

113 m²
4
1
876 €/m²

Descripción

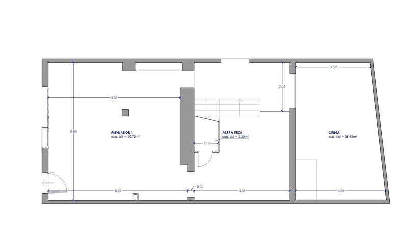
Local comercial en venda amb projecte de canvi d’ús a habitatge – Centre de Vilanova del CamíOportunitat única! Es ven local comercial situat al centre de Vilanova del Camí, amb una superfície construïda de 113 m². L'última activitat desenvolupada ha estat un restaurant, de manera que disposa de dues cambres de bany, acabats amb terra ceràmic i tancaments de fusta.El local compta amb projecte en curs per al canvi d’ús a habitatge, oferint així una gran oportunitat per a inversors o per a qui desitgi convertir-lo en una vivenda amb encant i en una ubicació privilegiada.Característiques destacades:113 m² construïtsProjecte de canvi d’ús a habitatgeDues cambres de banyTerra ceràmic i tancaments de fustaSituació immillorable al centre de Vilanova del CamíTots els serveis a peu de carrerExcel·lent connexió amb transport públic (Ferrocarrils i línia d’autobús Igualada-Barcelona)Incloem plànols del projecte a les imatges de l’anunci.Molt interessant i amb moltes possibilitats! Ideal per convertir en un habitatge acollidor o com a inversió rendible.Per a més informació o per concertar una visita, no dubtis a contactar-nos!

traducir

Trovimap ID: 311351-38847125
Ref. Agencia: 19062

Características

Tipo

Oficina

Planta

0

Año de construcción

1988

Certificado energético

-

Popularidad

Última actualización

21 nov. 2025

Días en el mercado

147

Visitas

-

Compara y solicita la mejor hipoteca

¿Cual es el valor de tu inmueble?

Escribe tu dirección. Obtén al instante tu valoración GRATUITA